20A Ramnet Circuit Munno Para SA 5115

3 / 2 / 1 / -

Here you can find what you need to know about 20a Ramnet Circuit , including how much it's approximately worth, a history of what it has previously sold for and even the estimated weekly rent. You can also view comparable house and unit for sale and sold prices, information about Munno Para, SA and much more.

Property photo of 20A Ramnet Circuit Munno Para SA 5115
Property photo of 20A Ramnet Circuit Munno Para SA 5115
Property photo of 20A Ramnet Circuit Munno Para SA 5115
Property photo of 20A Ramnet Circuit Munno Para SA 5115

Property Insights

20A Ramnet Circuit Estimated Value

$700,000 - $750,000

Date of estimated value: 04 May 2026

About Estimated Values

An automated valuation model estimate (AVM Estimate) is a statistically derived estimate of the sale or rental value (as the context requires) of the subject property. An AVM Estimate is generated (i) by a computer driven mathematical model in reliance on available data; (ii) without the physical inspection of the subject property; (iii) without taking into account any market conditions (including building, planning, or economic), and/or (iv) without identifying observable features or risks (including adverse environmental issues, state of repair, improvements, renovations, aesthetics, views or aspect) which may, together or separately, affect the value.

An AVM Estimate is current only at the date of publication or supply. An AVM Estimate must not be relied upon as a professional valuation or an accurate representation of the market sale or rental value of the subject property. Cotality expressly excludes any warranties and representations that an AVM Estimate is an accurate representation as to the market sale or rental value of the subject property.

To the full extent permitted by law, Cotality excludes all liability for any loss or damage howsoever arising or suffered by the recipient, whether as a result of the recipient''s reliance on the accuracy of an AVM Estimate or otherwise arising in connection with an AVM Estimate.

High confidence estimate
Upgrade to Premium for the exact estimated value
Last Sale details unavailable
Mortgage
Repayment
$840 pw
This calculation is an estimate of weekly mortgage repayments using the estimated property value and a 20% deposit over a 30 year term. The interest rate applied is the average of the big 4 bank's Standard Variable Rates. This tool is only a guide of what your weekly mortgage repayments might be and does not take into account your personal circumstances such as your borrowing power, the lender's home loan product features, the term of any mortgage and does not include all applicable fees and charges that might be applied if you purchase a property. Your actual weekly mortgage repayments may be different. Before acting on this calculation you should seek professional advice.
Estimated
Rent
High confidence
Gross
Cashflow
Estimated
Gross Yield
High confidence
Natural Hazard Risk
Example Only
Upgrade to Premium to view pros and cons for this property
Upgrade to Premium to view pros and cons for this property

Pros & Cons

Things to like
  • Above market cashflow potential
  • Cheaper than comparable properties
  • Low risk of losing value
Things to look out for
  • Slower growth than market average

Investment Strategy Scores

See how this property rates against different investment strategies. Learn more

Example Only
Upgrade to Premium to view Investment Strategy Scores for every available property and suburb in Australia
Upgrade to Premium to view pros and cons for this property
How we calculate the property Cashflow Score

Each property is given a score out of 100 based on one factor relating to the specific property and one factor relating to the suburb in which the property is located in. Each factor has a specific weighting.

A higher score indicates the property has higher than average estimated gross yield and is located in a suburb with similarly high yielding properties.

This property National
Estimated
Gross Yield
Manly, NSW National
Median
Gross Yield

Investor Scores are computer generated and should not be regarded as personal or general advice about investing in residential property. They should not be relied on as such — persons seeking to buy or sell residential property should always seek appropriate professional advice. The methodology used to develop the Scores depends on the availability of property data and also depends on certain assumptions and estimates.
How we calculate the property Capital Growth Score

Each property is given a score out of 100 based on one factor relating to the specific property and three factors relating to the suburb in which the property is located in. Each factor has a specific weighting.

A higher score indicates the property has recently experienced significant capital growth and the short term outlook for further growth is likely to be good given strong market health indicators.

This property National
Change in Property
Value (1 yr)
Manly, NSW National
Change in Median
Price (1 yr)
Average Days
on Market
Average Vendor
Discounting

Investor Scores are computer generated and should not be regarded as personal or general advice about investing in residential property. They should not be relied on as such — persons seeking to buy or sell residential property should always seek appropriate professional advice. The methodology used to develop the Scores depends on the availability of property data and also depends on certain assumptions and estimates.
How we calculate the property Lower Risk Score

Each property is given a score out of 100 based on two factors relating to the specific property and three factors relating to the suburb in which the property is located in. Each factor has a specific weighting.

A higher score indicates the property has increased in value over a longer period so is less likely to only be due to recent market forces. It is also likely to command higher rent than average and therefore attract higher income tenants. Furthermore, it is likely to be easier to sell in the future due to strong market health indicators in the suburb it is located in.

This property National
Change in Property
Value (1 yr)
Estimated weekly
rent
Manly, NSW National
Average Days
on Market
Change in Median
Price (5 yr)
Average Vendor
Discounting

Investor Scores are computer generated and should not be regarded as personal or general advice about investing in residential property. They should not be relied on as such — persons seeking to buy or sell residential property should always seek appropriate professional advice. The methodology used to develop the Scores depends on the availability of property data and also depends on certain assumptions and estimates.

About this Property

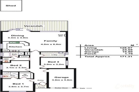
Details

Bedrooms 3
Bathrooms 2
Car Spaces 1
Land Size -
Floor Area 145 m2
House Type House
Council Area Playford
Year Built n/a
Zone n/a
Lot/Plan n/a
Property Type House

Property Timeline

Upgrade to Premium to see the available history of this property. Learn more

Comparable properties


Loading

Local Schools


Loading

State Auction Clearance Rates


Loading

Suburb Insights

Munno Para, SA 5115

No data available Part of: Playford Council

Get neighbourhood info and insights with our Suburb Profile

View Munno Para Suburb Profile View properties in Munno Para


Loading

Demographic data provided
by Australian Bureau of Statistics

Here you can find everything you need to know about 20A Ramnet Circuit, including the property sale history and estimated market value as well as insights into Ramnet Circuit and Munno Para 20A Ramnet Circuit Munno Para SA 5115